【首里金城町】人気地区首里高台に4LDK一戸建てB号地を販売開始!
【新築】管理費 積立金 駐車代 0円!
モノレール首里駅 徒歩13分。
約1万個のレンガを一つ一つ手積みしたレンガ積み住宅。
首里の高台から望む海の見える景色でワンランク上の邸宅を是非一度ご覧ください。
住所那覇市首里金城町4丁目
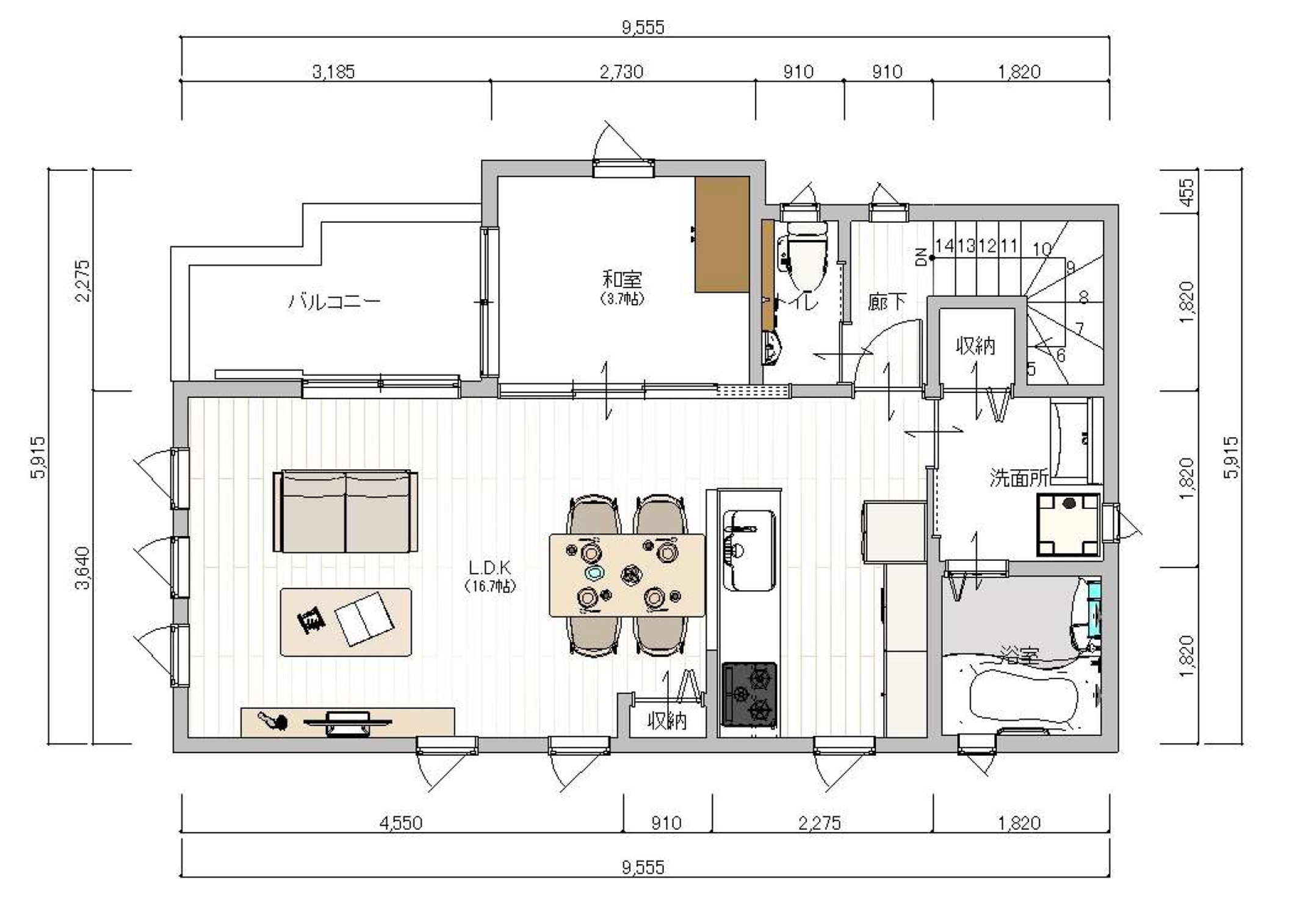
土地面積約116㎡(約35.09坪)
建物面積約93.77㎡(約28.36坪)
地目宅地
土地権利所有権
建ぺい率50%
接道状況ー
開発許可番号ー
構造・工法木造・その他
総戸数2
引き渡し応相談
交通金城町バス停から2分
販売価格5,480万円
間取り4LDK(和 3.1 / 洋 6.3・5.3・5.7 / LDK 16.8)
用途地域第一種低層
都市計画市街化区域
容積率100%
設備システムキッチン / カウンターキッチン / 食器乾燥機 / プロパンガス / 浴室乾燥機 / 温水洗浄便座 / トイレ2カ所 / ウォークインクローゼット / 床下収納 / 地上デジタル放送 / モニター付きインターホン / 上水 / 下水
開発検査済番号ー
販売戸数1
完成予定2026年
取引態様売主









